home > current developments > Eythorne Court > floor plans
  Reigate, Surrey
Description
Opening Times
Floor Plans
Prices and Availability
Download Brochure
Request Brochure
Location
  Croydon, Surrey
  Buckhurst Hill, Essex
  Upminster, Essex
 
  Croydon, Surrey

   
   

 

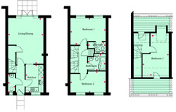
Floor Plans. Right click on the image and "save target as" to download a Acrobat pdf file of the floorplan with room dimensions

Rightclick to download PDF file of Site Plan
Site Plan (880k download)
Rightclick to download PDF file of Floor Plan
Ground Floor Flats (430k download)
Rightclick to download PDF file of Floor Plan
FIrst Floor Flats (424k download)
Rightclick to download PDF file of Floor Plan
Second Floor Flats (406k download)
Rightclick to download PDF file of Floor Plan
Plots 11 and 14(mirrored) (324k download)
Rightclick to download PDF file of Floor Plan
Plots 12 and 13 (mirrored) (356k download)